© 2022. Tutti i diritti riservati.
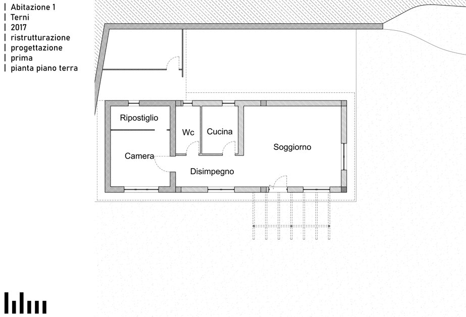
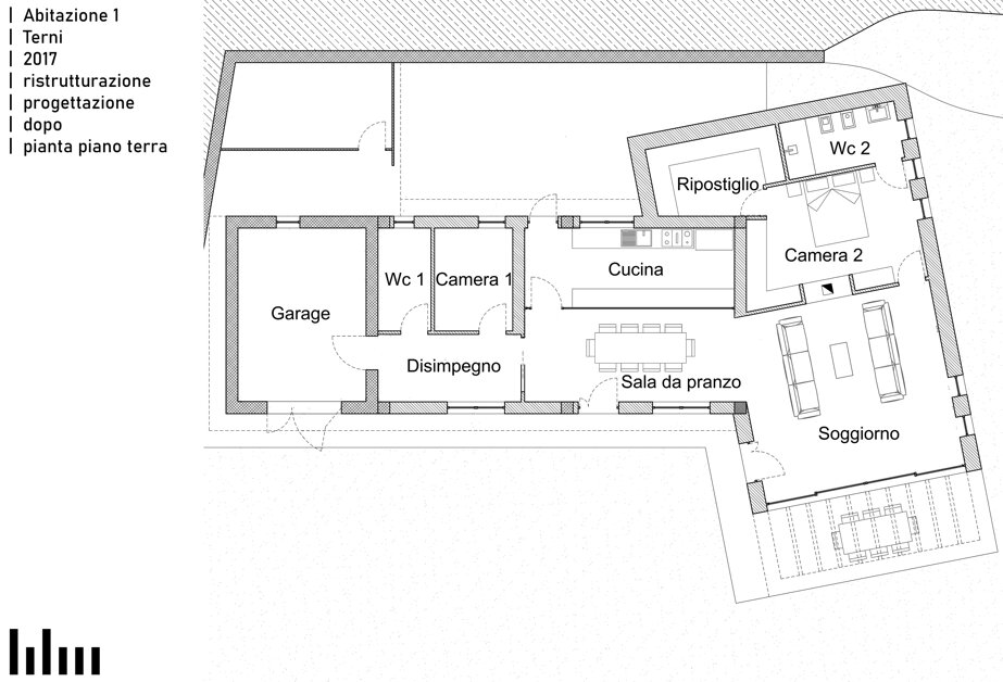
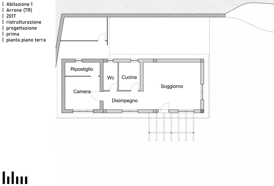
Il lavoro svolto riguarda la progettazione, con relativa analisi preliminare dei costi, relativa all'ampliamento di un'abitazione rurale, situata in un'altura intorno al lago di Piediluco.
La richiesta della committenza di dare maggior ariosità agli spazi interni, inserendo nella nuova costruzione una camera padronale con annesso bagno interno ed il soggiorno, è stata declinata ponendo la camera in una posizione più riparata dai venti che d'inverno spazzano la zona, lasciando al soggiorno l'affaccio principale sul terreno di proprietà e sul lago, garantendo una vista meravigliosa in particolar modo al tramonto.
























